
本期主要和你介绍木饰面的干挂法和胶粘法施工。
木饰面安装可以采用气钉法、胶粘法和干挂法,胶粘法要求木饰面基层平整度要≤3mm,而干挂法可以调整基层平整度;但气钉安装最大缺陷是需要补钉眼,无法做到安装标准化。

01.木饰面护墙板干挂法施工工艺流程



下面以木龙骨基层干挂木饰面的安装方法为例,来介绍木饰面的施工工艺流程。

1、基层处理
主要是检查基层水泥砂浆层含水率不大于8%,潮湿部分做防潮处理,检查基层牢固度、垂直度和平整度,吊顶和地面的分项工程的进度符合安装要求,水电、设备及其管线的铺设完成且进行了隐蔽验收。如下图:

2、放线
放线是将施工作业面按300~400mm均匀分格龙骨的中心位置,然后用墨斗弹线,再用冲击钻在龙骨中心线位置钻孔,再将三防处理(防腐防火防虫)过的木楔(直径14~16mm长50mm)植入,如下图

3、三防处理
将处理过三防的木方(20*30mm),按照放线分格加工凹槽榫,如下图:

4、木楔安装
制成木骨架,用自攻螺丝固定在木楔上。

5、龙骨安装

将基层板按照分格进行划线,用自攻螺丝固定在木龙骨上,钉距100mm左右,进行封板。
6、铺订基层板

7、安装挂条
安装进行三防处理过的挂条,如下图,木龙骨间距300,那么挂条的距离就是300mm,木龙骨间距是400mm,那么挂条的距离就是400mm,一个挂条用自攻螺丝固定在基层板上,另一个挂条用白乳胶漆粘在木饰面上,再用自攻螺丝固定,两个挂条想位置需要和基层板上分格位置保持一致。

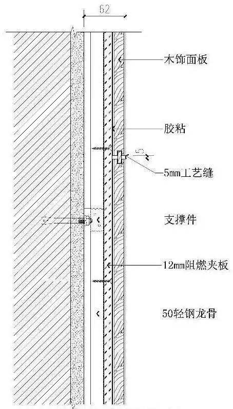
护墙板后面的挂条,12mm厚
8、挂装木饰面板

护墙板与基层之间通过挂条进行固定
上图是进行的是水平挂装,就是左右挂装。当然还有垂直挂装,如下图,就是自上而下挂装。

如果木饰面是顶天不到地(上面挨着天花石膏板,下面用踢脚线收口)的话,那么采用从下向上挂装;
如果木饰面是顶底不到天(上面有顶角线来收口,下面直接到地)的话,那么采用从上向下挂装;
如果木饰面是顶天立地的话,那么采用水平挂装。
下图就是装好成品细节。
9、成品保护

护墙板之间有5mm的工艺槽

预留工艺槽正面特写

工艺条与工艺缝之间的特写

工艺条与工艺缝之间的特写正面

局面护墙板安装好后的效果展示
02.木饰面护墙板胶粘法施工工艺流程



对比干挂法,最常用的方法,胶粘法是在装修后期,待地面完工后,用胶水+挂码条在基层上安装饰面板(现场装修人员在装修前期就已经做好并完成调平垂直面等工序的基层板)。
用胶粘法安装饰面板,免去了日后维修、返工的麻烦。也最大限度避免了装修过程中各个环节对饰面板造成的人为损坏。
(1)根据设计施工图要求在已制作好的木作基层上弹出水平标高线、分格线,检查木基层表面平整和立面垂直、阴阳角套方。

(2)挑选花色木夹板,分出不同色泽、纹理、按要求下料、试拼,将色泽相同或相近木纹一致的饰面板拼装在一起。

木纹对接要自然协调,毛边不整齐的板材应将四边修正刨平,微薄板应先做基层板然后再粘贴,清水油漆饰面的饰面板应尽量避免顶头密拼连接,饰面板应在背面刷三边防火漆。

同时下料前必须用油漆封底,避免开裂便于清洁,施工时避免表面靡擦、局部受力,严禁锤击。高档夹板施工工人戴白手套操作。
(3)用木胶粉均匀涂在饰面背面及木基层一面,在饰面板上垫9rim多层板条,枪钉打在板条上待胶干后起下板条和枪钉。起板条和汽枪钉时必须有垫木,防止局部受力,损坏饰面。

(4)装饰木线必须色泽一致,光洁平整,接缝紧密,枪钉必须钉隐蔽部位,装饰木线的材料必须经过烘干,且含水率必须符合要求,色泽、纹理符合设计要求,线条机表面必须无油污,木线表面经砂磨光滑、油漆封底,分色挑选后运送至工地。

(5)少数直接固定的饰面可以使用少量的纹枪钉施工。微薄板以及按设计要求有些饰面板安装在做好中密度板、多层板基层板的基础上采用二面涂刷强力胶粘贴,涂刷胶水必须均匀,胶水及作业面整洁,涂刷胶水后,应待胶水不粘手再粘贴,并用木块做垫块用榔头间接敲实。

(6)装饰面严禁用铁砂布、粗木砂纸擦面,不得有胶迹、铅笔线迹。
(7)严禁在精光实木边线时刨削饰面板贴面。精心施工,加强成品保护,避免边角被碰。最后就是做好后期的成品保护了,到此就完成木饰面的整个过程。
本期的木饰面安装工艺分享到这里,如果你有疑惑欢迎在留言交流互动。