本文介绍了多向模锻液压机研发的必要性,在分析现有生产工艺流程模式下零件生产设备不足的基础上阐述了使用多向模锻液压机的优势。之后阐述了多向模锻液压机设计的关键技术条件,包括主机参数特点及设计优化等内容,并指出该种模锻成形液压机的设计成功将极大提高生产效率、提高材料利用率,降低工艺难度,为该生产工艺的广泛应用提供可能。
多向管接头的生产目前有两种传统工艺,一种是采用压铸成形毛坯,然后精密机加工成形;另一种是采用锻造毛坯,然后精密机加工成形。压铸工艺存在材料铸造缺陷风险大、材料许用强度低、铸件利用率低、污染大、耗能高等问题;锻造工艺存在毛坯成本高、机加工时间长、生产效率低、材料利用率低等问题。
多向模锻技术是一种先进精密、节能省材的锻造技术,主要用于汽车、机械、石油化工、锅炉制造、航空航天、船舶等行业多面体结构件的一次成形,可显著提高零件强度,降低生产成本,促进零件轻量化。由于其技术及装备要求较高,至今只有少数国外公司掌握,并垄断着大型核电、航空航天、石油化工等多向模锻件的生产。本文介绍的多向模锻设备能一次锻造完成三通阀体整体结构,包括三向法兰、三向内孔,且不需要余料飞边,克服了现有技术的缺陷,有效提高原材料利用率20%以上,提高机械加工效率60%以上,还实现了金属全纤维锻造成形,提高了产品综合机械性能和质量。
多向模锻生产工艺多向模锻生产工艺流程如下:原材料(棒料)按尺寸下料→坯料加热→上模具合模→左、右、后压头带动左、右、后挤压杆同步向中心挤压(图1)→左、右、后压头带动挤压杆挤压到设定位置→左、右、后压头退回→上压头带动上模退回→取出成品→精密机加工切除余料。
多向模锻对设备要求如下:⑴工件小、成形力大、载荷集中;⑵左右压头同步精度、位置精度要求高;⑶三个方向上的水平压头在挤压过程中的翘曲变形控制精确,翘曲变形直接影响零件的三个方向上孔的位置精度和形状精度。

图1典型零件图
多向模锻液压机的主要方案多向模锻液压机采用三梁四柱框架结构机身,在水平方向后侧安装拉伸滑块和压边滑块,可在水平面四个方向(4轴)同时成形,其中后侧方向可实现双动压制;建立了精确的工艺缺陷预测计算模型,通过优化轴向推力的加载曲线和模锻坯料的形状、尺寸等工艺参数,改善成形质量,对典型模锻构件仿真模拟研究及工艺参数优化;采用图像检测技术构建在线检测系统,辅助形成挤压成形工艺系统,可实现多向模锻件柔性成形和实时修正;采用高性能PLC控制技术,开发了大型多向模锻液压机专用数控系统,能够实现多向模锻件的送料、取料和定位装置的控制,多向模锻件的冷却和润滑的控制,多向模锻件的挤压深度、挤压力和压边力的控制,液压伺服控制和多轴运动控制等;开发出的专用液压比例伺服系统可实现比例调压、变压力控制等;另外,该装备配备多向模锻件自动上下料及取料装置,有效地节省了人力成本。
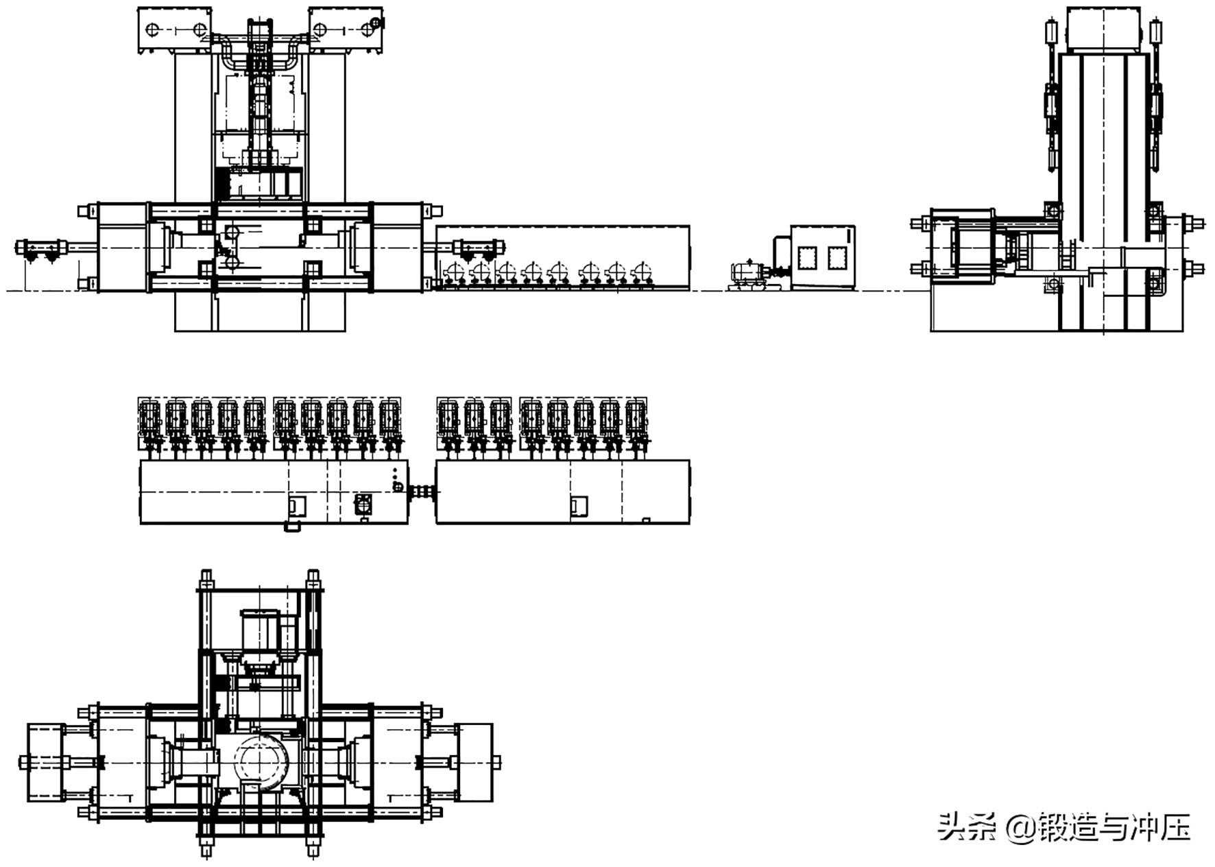
如图2所示,液压机设备公称压力为145000kN,总占地面积8800mm×5800mm(左右×前后),地面以上高度约为10000mm,装机功率约为1400kW。
多向模锻液压机的主要技术特点设备台面较小,吨位大、载荷集中多向模锻设备总吨位普遍较大,左、右、后三向模锻设备合模及左右挤压力都在20000kN以上,而模具尺寸相对所需模锻成形力较小。因此压头与模具接触面的应力会远大于普通设备的模具接触面应力,这就需要对压头的材料和结构进行设计,压头材料需要保证在压头和挤压杆的接触面上不会被压溃,压头的结构需要保证把挤压力分散至整个活塞杆接触面上,以免造成油缸损坏(图3)。

图2设备外形图

图3设备结构图
左、右压头压制同步精度要求高根据多向模锻的工艺要求,左、右压头压制过程中的位移需要很高的同步,否则成形形状不合格、内部可能存在一定的缺陷。模具受力不平衡严重时甚至会导致模具损坏。因此,三向模锻液压机左、右压头的同步精度直接关系到生产的产品质量和模具的寿命。因此,该设备采用高精度的位移传感器、PLC、高频响伺服阀组成闭环控制系统,实现了同步精度0.05mm/s和位置精度0.05mm,满足了该零件成形的工艺要求。
水平压头翘曲变形要控制精确三个方向上的水平压头在挤压过程中的翘曲变形要控制精确,翘曲变形直接影响零件的三个方向上孔的位置精度和形状精度。
三个方向上的压头和工作台面间的平行度会影响合模后的模腔形状,如果偏差较大会导致成形后的零件孔的同轴度不够,严重影响零件的质量。因此,三个方向的压制过程的机身变形的大小会直接影响产品的质量。
如图4所示,该设备竖直方向上采用无拉杆立柱,通过精加工的台阶面配合,竖直方向上油缸主要提供合模力对机身在这个方向的变形要求较低。左右和前后方向上均采用四拉杆结构,组成封闭框架结构,该结构在防止翘曲变形方面非常有效,提高了成形过程中机身的精度,满足零件的成形要求。

图4机身结构俯视图
实践结果该设备(图5)目前已经交付用户3年,使用效果良好,实现了量产,零件的成形质量高,达到了预期的效果。

图5设备现场照片
多向模锻成形技术作为一种新的先进制造技术,能够有力地推动制造工业技术的发展,顺应未来制造工业节能、经济和环保的发展趋势,具有广阔的应用前景。该设备的研制成功不仅具有重要的理论意义,更具有重大的经济和社会效益。

王磊合锻智能制造股份有限公司
王磊,副总经理,工程师。主要从事液压机的研发、销售工作,曾主持完成青海8000t海绵钛锻造生产线、西安10000t等温锻造压机的开发、北汽新能源全封闭自动化生产线、新疆8000t锻造线等项目。共拥有13项专利。